Trilocale in vendita

Parma, Via Emilia Est - San Lazzaro
€ 390.000
3 locali 3 locali
114 Mq 114 Mq
2 bagni 2 bagni

Trilocale in vendita

Parma, Via Emilia Est - San Lazzaro

Descrizione annuncio

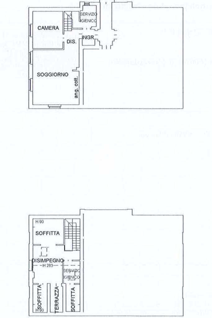
Immagina di tornare a casa ogni giorno in un luogo che non è solo un appartamento, ma un'oasi di stile e comfort. In Via Emilia Est, una palazzina intima, di pochi appartamenti, completamente ristrutturata, proponiamo in esclusiva un appartamento disposto su due livelli, con una superficie di 114 mq circa, al primo ed ultimo piano servito da ascensore. L’immobile offre spazi ben distribuiti e una luminosità naturale che valorizza ogni ambiente. Al primo piano troviamo ampia sala con cucina di design a vista, una camera da letto, un comodo bagno con ripostiglio, le finestre sono complete di zanzariere e scuretti in pvc.

Al piano mansardato uno spazioso living adibito a camera da letto, bagno/lavanderia, vano cabina armadio e un comodo terrazzino a tasca. Velux tutti elettrificati.

Le finiture conferiscono un tocco di eleganza e raffinatezza agli interni, rendendo ogni dettaglio curato ed accogliente. Gli ambienti sono riscaldati con impianto a pavimento, raffrescamento con split che erogano aria condizionata ed anche aria calda (Inverter).

Completano questa casa, una capiente cantina ed un doppio garage in larghezza.

Ottimo contesto, posizione tranquilla e riservata ma nel cuore del quartiere San Lazzaro che garantisce ogni tipo di servizio.

Per informazioni contattare Elena al numero 329-4905585 oppure 0521-1511909

Mostra tutto

Nelle vicinanze

Trasporto pubblico Trasporto pubblico
stazione di Parma
stazione di Parma
2,1 Km
Trasporto pubblico
40 m
21
21
150 m
Ricariche auto elettriche Ricariche auto elettriche
Eneldrive Calamandrei
620 m
Eneldrive Cittadella
1,2 Km
Eneldrive Della Steccata
1,6 Km
Novotel Parma Centro
1,9 Km
IrenGo Istituto Comprensivo Parmigianino
1,9 Km
Scuole Scuole
My English School Parma
230 m
Scuola Media SAN PAOLO
520 m
Scuole
650 m
Università civiltà linguistica E Letteratura
720 m
Convitto Nazionale Maria Luigia
820 m
Farmacia Farmacia
Farmacia Costa
80 m
Farmacia Zarotto
300 m
Farmacia
310 m
Farmacia Nazionale
630 m
Farmacia Stadio Tardini
750 m
Ospedali Ospedali
Casa di Cura Città di Parma
1,4 Km
Casa della Salute Parma Centro
1,5 Km
Casa della Salute Pintor-Molinetto
2,1 Km
Piccole Figlie Hospital
2,2 Km
Gemini
2,7 Km
Supermercati Supermercati
U2
480 m
Conad
770 m
Natura Si
790 m
Supermercati
860 m
Esselunga
960 m
Negozi Negozi
Negozi
70 m
Officina del Grano
80 m
Forno Vicomero
150 m
H&M
430 m
Game 7 Athletics
440 m
Bar Bar
Bevabeh
20 m
Bar
340 m
Circolo Castelletto
640 m
Estasi Lounge Bar
930 m
Lostello
1,1 Km
Ristoranti Ristoranti
Gainen
100 m
Du Zu Totò
190 m
Grilland
220 m
Hashi
270 m
Ristoranti
290 m
Mostra tutto

Caratteristiche

Rif.:
61155261
Piano:
1 di 3 con ascensore (ultimo Piano)
Box:
1
Terrazzi:
1
Camere da letto:
2
Arredamento:
Parziale
Mostra tutto
Prezzo Prezzo
€ 390.000
Rata mutuo Rata mutuo
€ 1.810 / mese
Proponi il tuo prezzoProponi il tuo prezzo
Immobile valutato con T·Valuta

Classe Energetica

B
B
B
B
B
B
B
B
B
EP globale non rinnovabile:
45.81 kW h/m² anno
EP globale rinnovabile:
0.00 kW h/m² anno
EP invernale del fabbricato:
EP estiva del fabbricato:
Anno di costruzione:
2023
Riscaldamento:
Centralizzato
Tipo impianto:
A pavimento
Tipo alimentazione:
Altro

Ti interessa visionare l'immobile?

Fissa un appuntamento  Fissa un appuntamento

Richiedi informazioni

Clicca su Leggi per aprire l'informativa
* Questi campi sono obbligatori

Calcola il tuo mutuo

Semplice e senza impegno
Anticipo

( % )
Mutuo

( % )

pochi semplici passi

inserisci i tuoi dati
Questionario completato
Grazie per aver richiesto un appuntamento senza impegno con un nostro Consulente del Credito e Assicurativo.

Hai inserito correttamente tutti i dati necessari e a breve riceverai una e-mail con un link da convalidare per inviare i tuoi dati.
Affiliato
Albaincasa Srl
Via Emilia Est, 54/B 43100 Parma (PR)

Il nostro staff


  • Elena Baranovicova
    Collaboratrice

  • Alberto Bertoldi
    Collaboratore

  • Diana De Pasquale
    Affiliata

  • Alessandro Fusi
    Collaboratore
Via Emilia Est, 54/B 43100 Parma (PR)
Zona: San Lazzaro - Lubiana - San Prospero
Mostra su mappa
Orari: Dal Lunedì al Venerdì: 9:00 - 13:00 / 15:00 - 19:00 Sabato: 9:00- 13:00
Affiliato
Albaincasa Srl
Via Emilia Est, 54/B 43100 Parma (PR)

2026 Tecnocasa Franchising S.p.A. - P. IVA 08365160152 - Via Monte Bianco 60/A 20089 Rozzano (MI). Ogni agenzia ha un proprio titolare ed è autonoma. Privacy policy | Policy utilizzo | Cookie policy