Quadrilocale in vendita

Parma, Via Stendhal - San Lazzaro
€ 540.000
4 locali 4 locali
151 Mq 151 Mq
2 bagni 2 bagni

Quadrilocale in vendita

Parma, Via Stendhal - San Lazzaro

Descrizione annuncio

Quartiere San Lazzaro - Barilla Center - CLASSE ENERGETICA A3

In una delle zone più tranquille e ben servite di Parma, proponiamo in vendita una casa semindipendente unica nel suo genere per la particolarità e l’accuratezza sia nella scelta dei materiali che nella loro posa.

La casa è frutto di un’attenta e recente ristrutturazione che ha saputo coniugare eleganza, comfort e funzionalità.

Il giardino privato da accesso alla casa, è completamente piantumato e provvisto di impianto di irrigazione automatizzato.

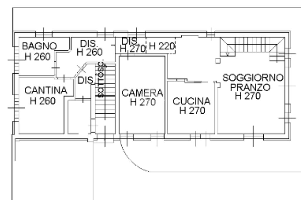
Al piano terra, l’ingresso si apre su un accogliente soggiorno, luminoso e ben distribuito, dove è già stata predisposta una canna fumaria per un eventuale camino.

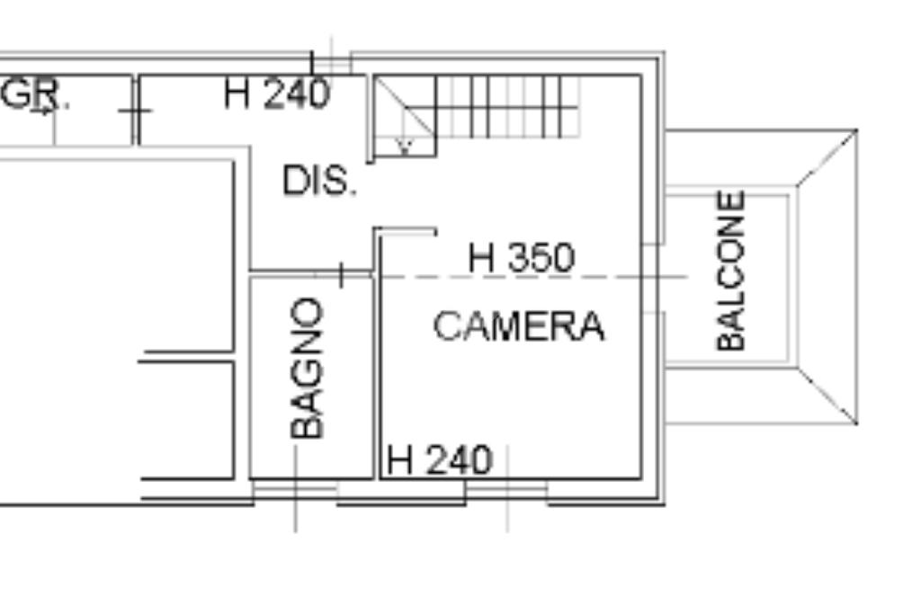
Sempre nel soggiorno troviamo una scala a vista in legno con scheletro in ferro che conduce al piano superiore, un’area sorprendentemente ampia e versatile, organizzata come open space e attualmente adibita a camera padronale, un bagno finestrato e un balcone che regala un piacevole affaccio sul giardino.

Passata la sala veniamo accolti da una cucina abitabile, munita di finestra e porta finestra, nella quale poter vivere appieno il quotidiano.

Un disimpegno accompagna alla zona notte dove troviamo una camera matrimoniale, uno studio, ideale anche come stanza per gli ospiti o spazio smart working, e un elegante bagno con doccia.

Completano la residenza un comodo ripostiglio che ospita anche una funzionale zona lavanderia.

La casa è un perfetto connubio tra comfort moderno e cura artigianale dei dettagli: integralmente rinnovata con interventi strutturali e impiantistici di assoluto rilievo.

I nuovi impianti elettrici e idrici assicurano efficienza e durata nel tempo. Riscaldamento a pavimento, climatizzazione canalizzata.

Il valore aggiunto è l’impianto fotovoltaico che contribuisce significativamente alla riduzione dei consumi energetici nonché all’ottenimento di una prestante classe energetica: l'appartamento è in classe energetica A3.

Gli infissi, di nuova generazione con triplo vetro stratificato, sono tutti provvisti di zanzariere.

Impianto di allarme volumetrico e perimetrale di marca BF2.

A completare le proprietà un garage doppio in larghezza e un posto auto nel cortile interno.

Per maggiori informazioni o per fissare un appuntamento chiamare Alessandro al 347 685 4331 oppure allo 0521 151 1909.

Mostra tutto

Nelle vicinanze

Trasporto pubblico Trasporto pubblico
stazione di Parma
stazione di Parma
2,0 Km
21
21
20 m
Trasporto pubblico
130 m
Ricariche auto elettriche Ricariche auto elettriche
Eneldrive Calamandrei
550 m
Eneldrive Cittadella
1,3 Km
Eneldrive Della Steccata
1,6 Km
Novotel Parma Centro
1,8 Km
EnelX EVA+ Conad Parma
1,8 Km
Scuole Scuole
My English School Parma
110 m
Scuola Media SAN PAOLO
480 m
Scuole
530 m
Università civiltà linguistica E Letteratura
690 m
ITIS "Leonardo Da Vinci" - Parma
710 m
Farmacia Farmacia
Farmacia Costa
170 m
Farmacia
380 m
Farmacia Zarotto
410 m
Farmacia Nazionale
590 m
Farmacia Stadio Tardini
770 m
Ospedali Ospedali
Casa della Salute Parma Centro
1,4 Km
Casa di Cura Città di Parma
1,5 Km
Casa della Salute Pintor-Molinetto
2,1 Km
Piccole Figlie Hospital
2,3 Km
Gemini
2,6 Km
Supermercati Supermercati
U2
400 m
Conad
750 m
Natura Si
840 m
Supermercati
930 m
Esselunga
1,0 Km
Negozi Negozi
Officina del Grano
80 m
Negozi
100 m
Forno Vicomero
240 m
Game 7 Athletics
380 m
H&M
380 m
Bar Bar
Bevabeh
120 m
Bar
410 m
Circolo Castelletto
740 m
Estasi Lounge Bar
980 m
Lostello
1,2 Km
Ristoranti Ristoranti
Gainen
40 m
Du Zu Totò
240 m
Grilland
280 m
Hashi
330 m
Ristoranti
360 m
Mostra tutto

Caratteristiche

Rif.:
61125668
Piano:
Su più livelli di 1
Totale piani:
1
Box:
1
Posti auto:
1
Balconi:
1
Mostra tutto
Prezzo Prezzo
€ 540.000
Rata mutuo Rata mutuo
€ 2.489 / mese
Spese annue Spese annue
€ 500
Proponi il tuo prezzoProponi il tuo prezzo

Classe Energetica

A3
A3
A3
A3
A3
A3
A3
A3
A3
EP globale non rinnovabile:
43.18 kW h/m² anno
EP invernale del fabbricato:
EP estiva del fabbricato:
Anno di costruzione:
2019
Riscaldamento:
Autonomo
Tipo impianto:
A pavimento
Tipo alimentazione:
Metano

Ti interessa visionare l'immobile?

Fissa un appuntamento  Fissa un appuntamento

Richiedi informazioni

* Questi campi sono obbligatori

Calcola il tuo mutuo

Semplice e senza impegno
Anticipo

( % )
Mutuo

( % )

pochi semplici passi

inserisci i tuoi dati
Questionario completato
Grazie per aver richiesto un appuntamento senza impegno con un nostro Consulente del Credito e Assicurativo.

Hai inserito correttamente tutti i dati necessari e a breve riceverai una e-mail con un link da convalidare per inviare i tuoi dati.
Affiliato
Albaincasa Srl
Via Emilia Est, 54/B 43100 Parma (PR)

Il nostro staff


  • Elena Baranovicova
    Collaboratrice

  • Alberto Bertoldi
    Collaboratore

  • Diana De Pasquale
    Affiliata

  • Alessandro Fusi
    Collaboratore
Via Emilia Est, 54/B 43100 Parma (PR)
Zona: San Lazzaro - Lubiana - San Prospero
Mostra su mappa
Orari: Dal Lunedì al Venerdì: 9:00 - 13:00 / 15:00 - 19:00 Sabato: 9:00- 13:00
Affiliato
Albaincasa Srl
Via Emilia Est, 54/B 43100 Parma (PR)

2025 Tecnocasa Franchising S.p.A. - P. IVA 08365160152 - Via Monte Bianco 60/A 20089 Rozzano (MI). Ogni agenzia ha un proprio titolare ed è autonoma. Privacy policy | Policy utilizzo | Cookie policy